flatscraper - logo
Nový Ružinov
Nový Ružinov - map
byt:
Budova:
Miranda B
Projekt:
Mesto / Obec:
Typ:
1.5-izbový byt
Poschodie:
3.NP
Rozloha:
45.01 m²
Exteriér:
6.2 m²
Cena:
225 951 €
Dostupnosť:
voľný
Moja Nehnuteľnosť
Profesionálna kalkulačka pre investície do nehnuteľností
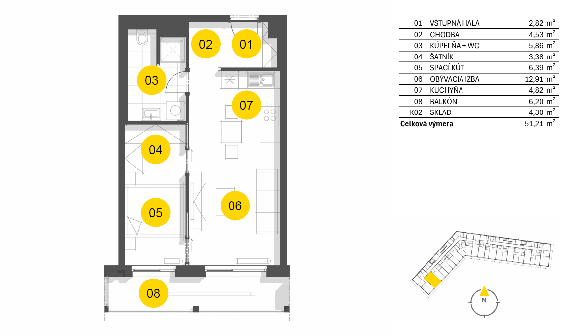
Nový Ružinov - C1.4.02 - Pôdorys
zdroj: https://www.novyruzinov.sk/cennik/34061764