Portum Towers
Portum Towers - map
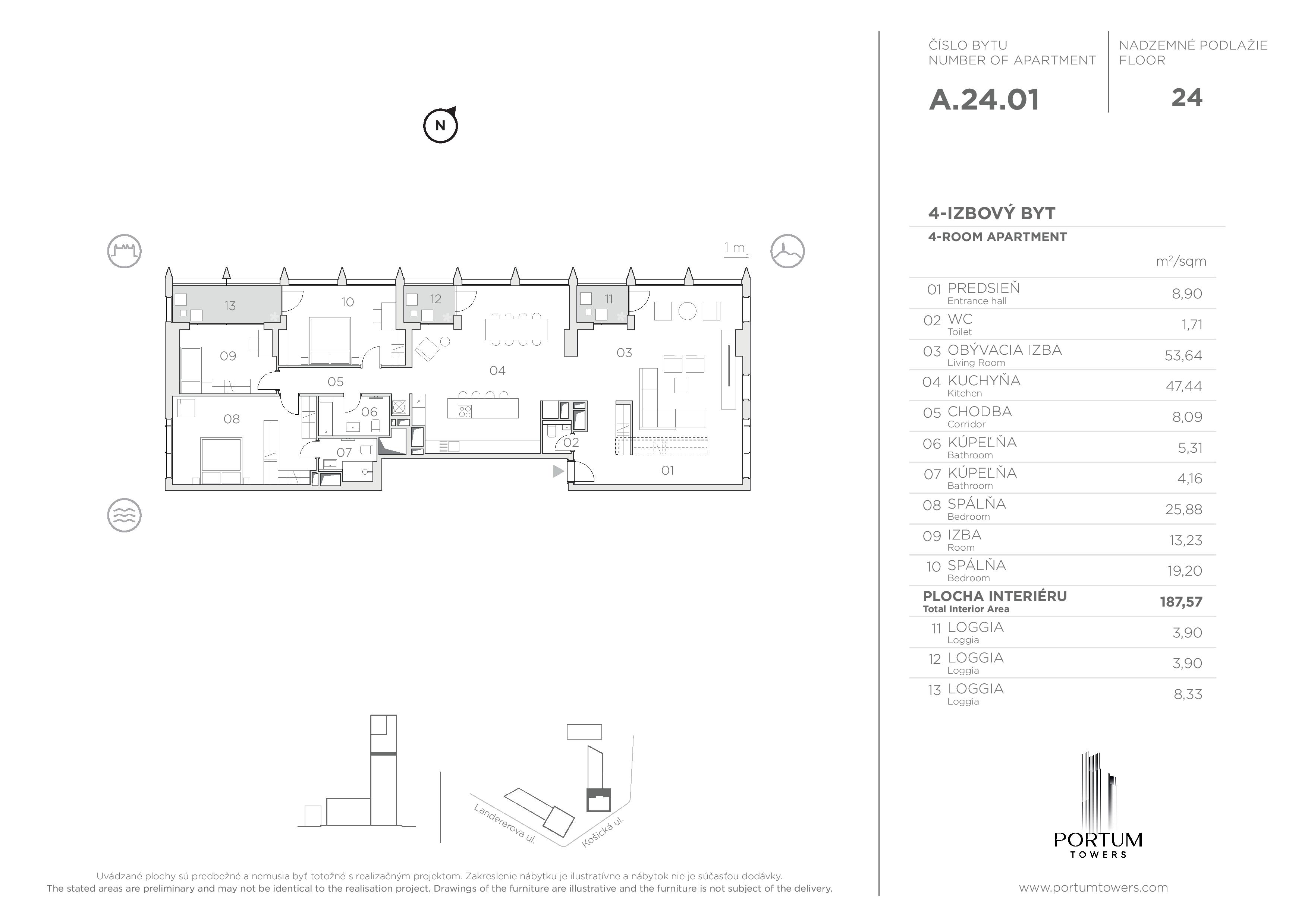
Oficiálna stránka bytu
byt
A.24.01
budova
-
projekt
mesto / obec
typ
4-izbový byt
poschodie
24.NP
interiér
187.NP
exteriér
16.14 m²
-
voľný