flatscraper - logo
Galandov majer
Galandov majer - map
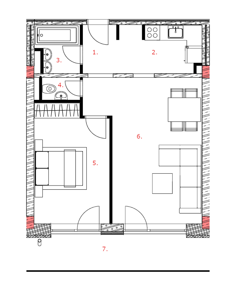
byt:
Projekt:
Mesto / Obec:
Typ:
2-izbový byt
Poschodie:
1.NP
Rozloha:
49.02 m²
Cena:
99 100 €
Dostupnosť:
voľný
Moja Nehnuteľnosť
Profesionálna kalkulačka pre investície do nehnuteľností
Galandov majer - K2.1.1 - Pôdorys
zdroj: https://galandovmajer.sk/byt/k2-1-1/