flatscraper - logo
Galandov majer
Galandov majer - map
byt:
Projekt:
Mesto / Obec:
Typ:
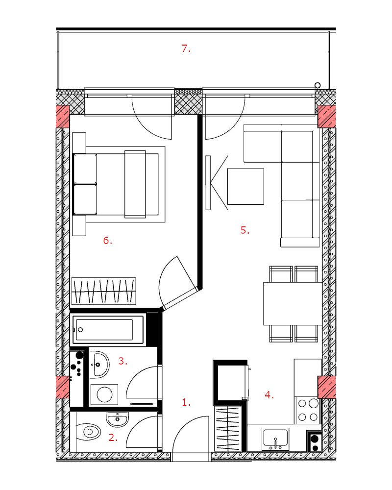
2-izbový byt
Poschodie:
4.NP
Rozloha:
46.67 m²
Cena:
105 600 €
Dostupnosť:
voľný
Moja Nehnuteľnosť
Profesionálna kalkulačka pre investície do nehnuteľností
Galandov majer - V39.4.2 - Pôdorys
zdroj: https://galandovmajer.sk/byt/v39-4-2/