flatscraper - logo
Galandov majer
Galandov majer - map
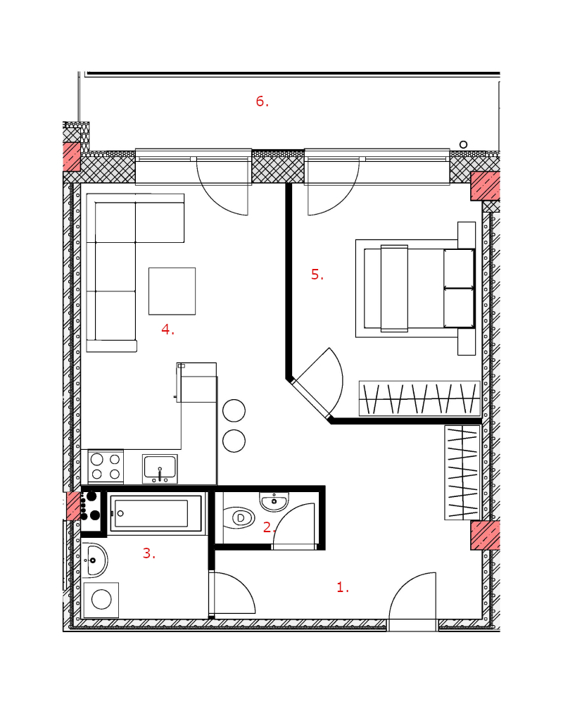
byt:
Projekt:
Mesto / Obec:
Typ:
2-izbový byt
Poschodie:
4.NP
Rozloha:
58.01 m²
Cena:
129 100 €
Dostupnosť:
voľný
Moja Nehnuteľnosť
Profesionálna kalkulačka pre investície do nehnuteľností
Galandov majer - V43.4.2 - Pôdorys
zdroj: https://galandovmajer.sk/byt/v43-4-2/