flatscraper - logo
Kaštieľ Bocian
Kaštieľ Bocian - map
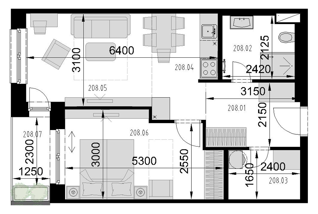
byt:
208
Projekt:
Mesto / Obec:
Typ:
2-izbový byt
Rozloha:
56.82 m²
Cena:
203 272 €
Dostupnosť:
voľný
Moja Nehnuteľnosť
Profesionálna kalkulačka pre investície do nehnuteľností
Kaštieľ Bocian - 208 - Pôdorys
zdroj: https://kastielbocian.sk/apartman/208/