flatscraper - logo
Anna Park
Anna Park - map
byt:
Budova:
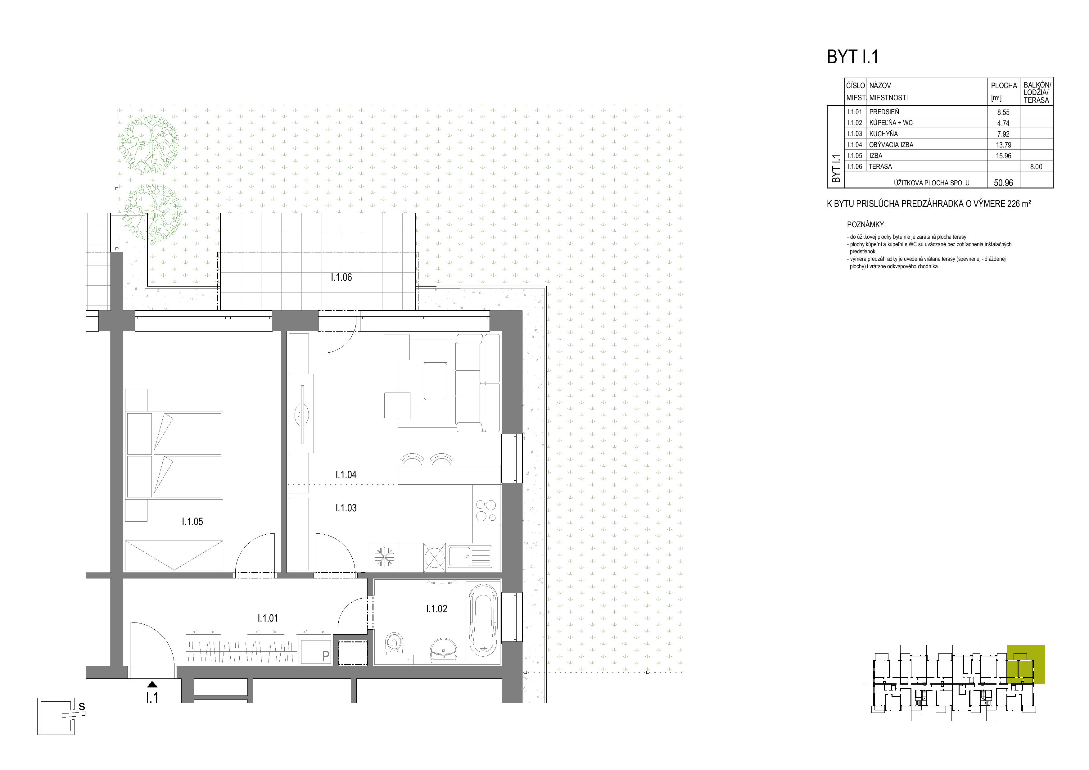
Sq36 03
Projekt:
Mesto / Obec:
Typ:
2-izbový byt
Poschodie:
1.NP
Rozloha:
50.96 m²
Záhrada:
226 m²
Cena:
167 990 €
Dostupnosť:
voľný
Moja Nehnuteľnosť
Profesionálna kalkulačka pre investície do nehnuteľností
Anna Park - I.1 - Pôdorys
zdroj: https://annapark.sk