flatscraper - logo
Blue Wave Riverside
Blue Wave Riverside - map
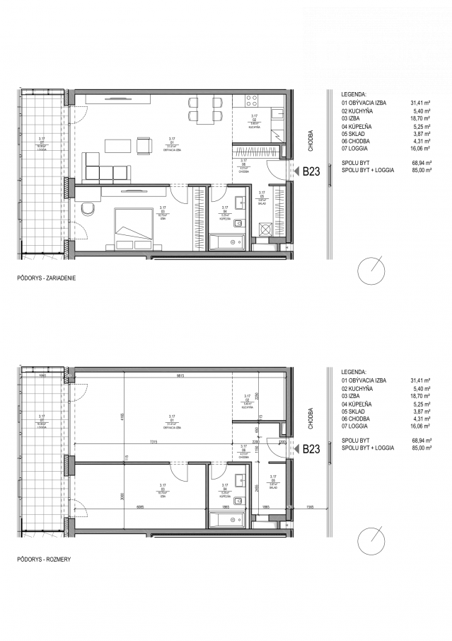
byt:
B23
Mesto / Obec:
Typ:
2-izbový byt
Poschodie:
3.NP
Rozloha:
88.52 m²
Exteriér:
16.06 m²
Terasa:
16.3 m²
Cena:
249 000 €
Dostupnosť:
voľný
Moja Nehnuteľnosť
Profesionálna kalkulačka pre investície do nehnuteľností
Blue Wave Riverside - B23 - Pôdorys
zdroj: https://www.bosen.sk/nehnutelnost/12295194-bosen-bluewave-2-izbovy-byt-s-krasnym-vyhladom-a3-23-banka-piestany-88-52-m2