flatscraper - logo
Blue Wave Riverside
Blue Wave Riverside - map
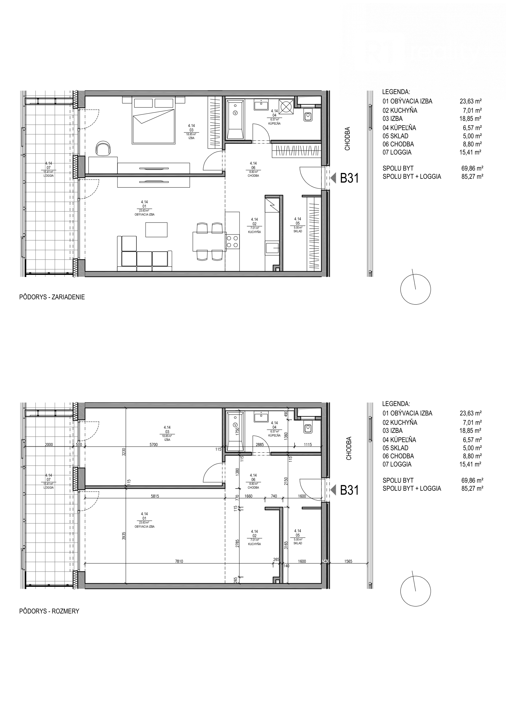
byt:
B31
Mesto / Obec:
Typ:
2-izbový byt
Poschodie:
4.NP
Rozloha:
69.1 m²
Terasa:
15.41 m²
Cena:
247 000 €
Dostupnosť:
voľný
Moja Nehnuteľnosť
Profesionálna kalkulačka pre investície do nehnuteľností
Blue Wave Riverside - B31 - Pôdorys
zdroj: https://www.bosen.sk/nehnutelnost/12295204-bosen-bluewave-2-izbovy-byt-s-krasnym-vyhladom-a4-31-banka-piestany-84-65-m2