Bell Residence
Bell Residence - map
Oficiálna stránka bytu
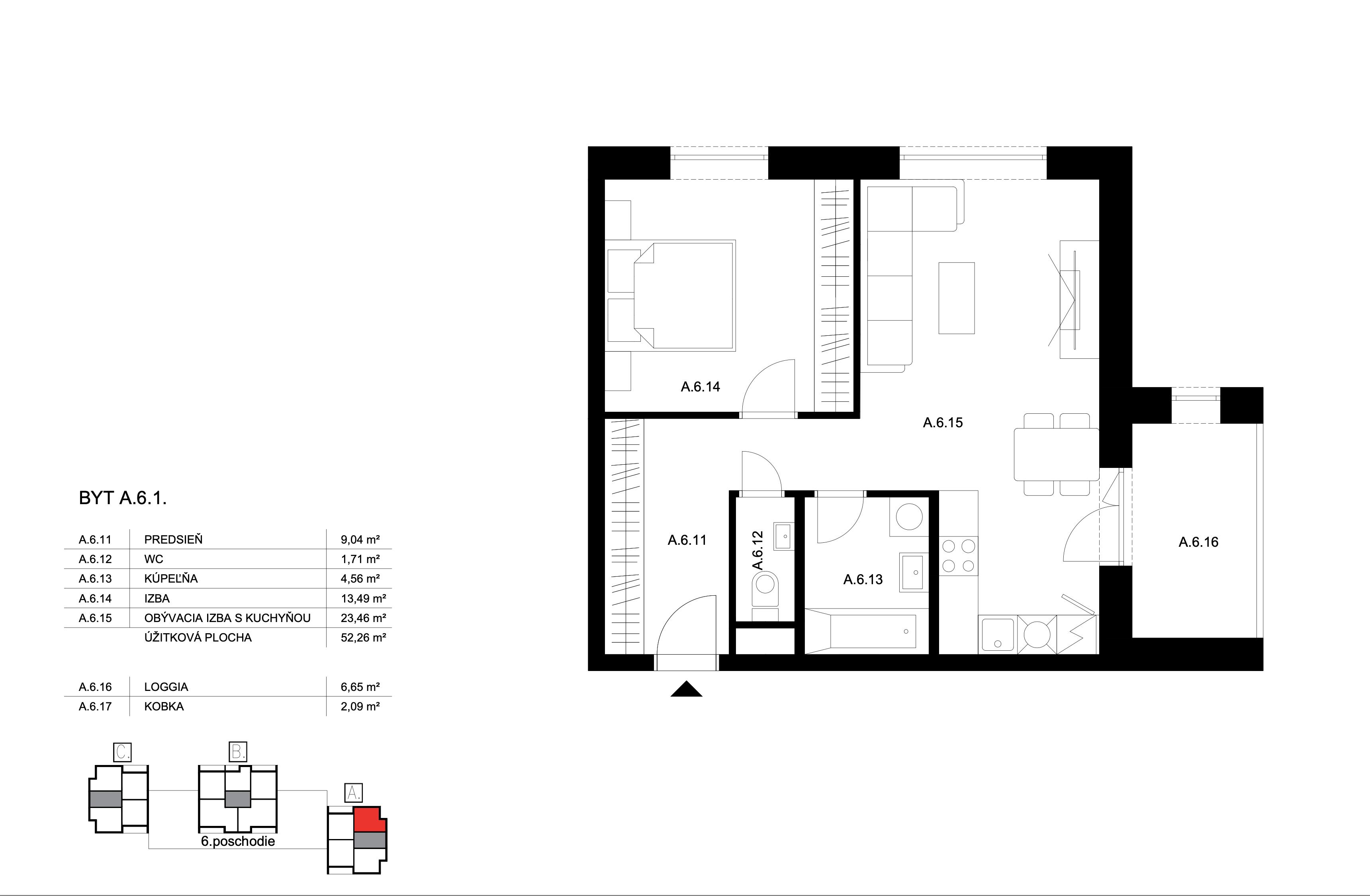
byt
A.6.1
budova
A
projekt
mesto / obec
typ
2-izbový byt
poschodie
6.NP
interiér
52.NP
186 200 €
voľný
Vypočítať návratnosť