Brokoffova residence
Brokoffova residence - map
Oficiálna stránka domu
dom
B08
budova
-
mesto / obec
typ
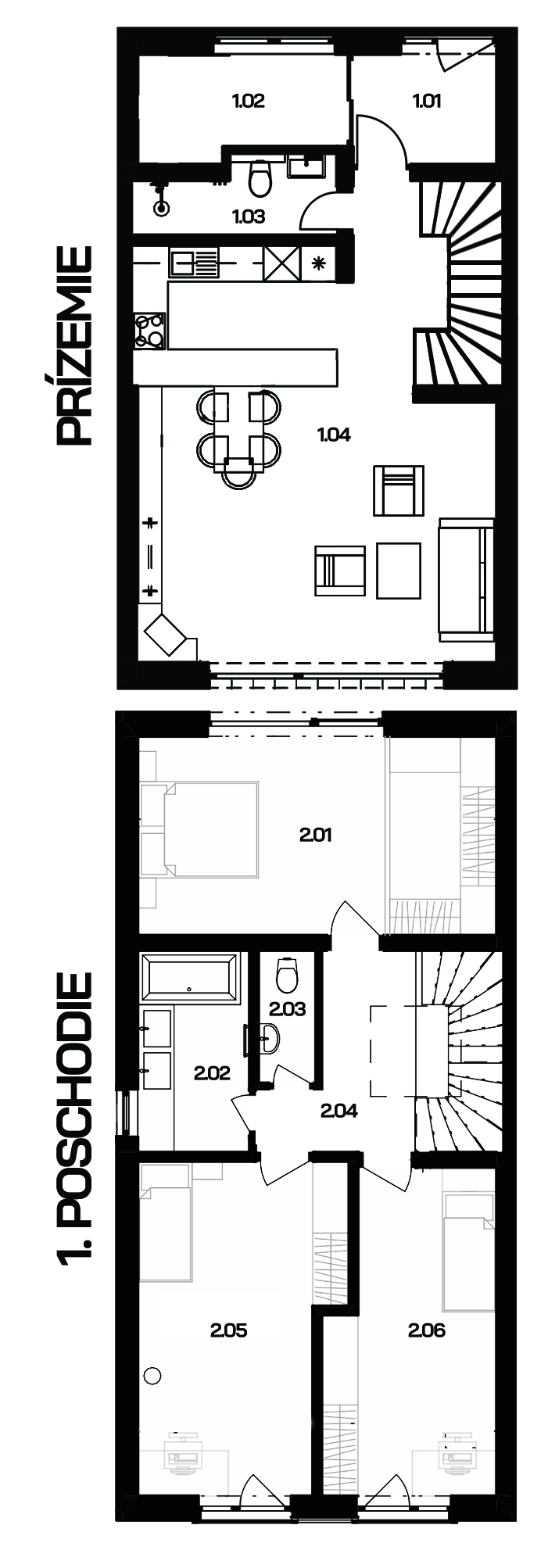
4-izbový dom
interiér
125.NP
340 000 €
voľný
Vypočítať návratnosť