Luna Residence
Luna Residence - map
Oficiálna stránka bytu
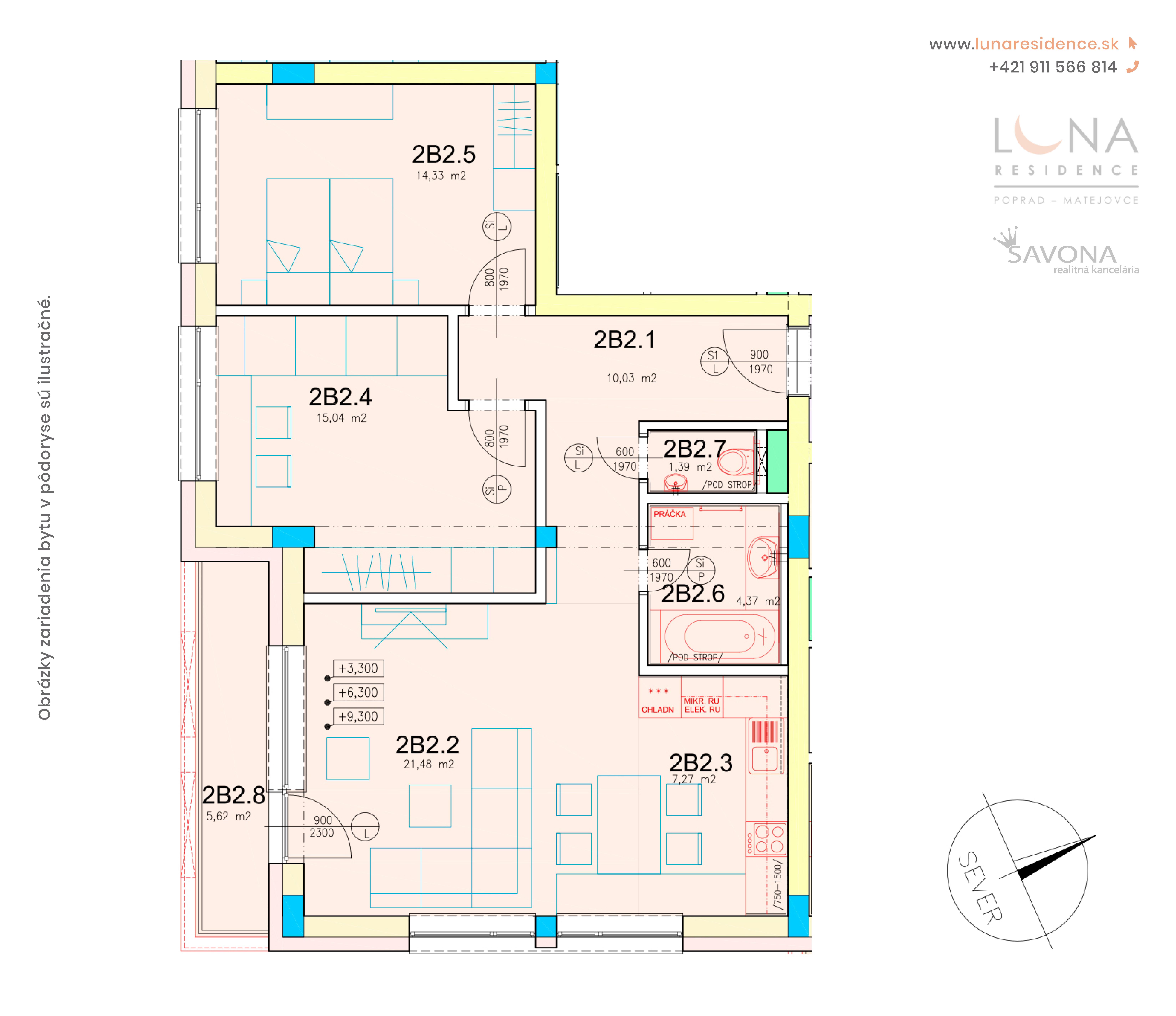
byt
2B 02
budova
B
projekt
mesto / obec
typ
3-izbový byt
poschodie
2.NP
interiér
73.NP
exteriér
5.62 m²
180 480 €
voľný
Vypočítať návratnosť