flatscraper - logo
Hríby
Hríby - map
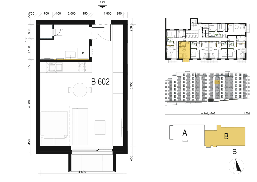
byt:
Projekt:
Mesto / Obec:
Typ:
1-izbový byt
Poschodie:
6.NP
Rozloha:
38.83 m²
Balkón:
3.92 m²
Cena:
109 155 €
Dostupnosť:
voľný
Moja Nehnuteľnosť
Profesionálna kalkulačka pre investície do nehnuteľností
Hríby - B602 - Pôdorys
zdroj: https://www.bytyhriby.sk/byt/jednoizbovy-byt-ruzomberok-b602/