flatscraper - logo
Trenčín Veľkomoravská
Trenčín Veľkomoravská - map
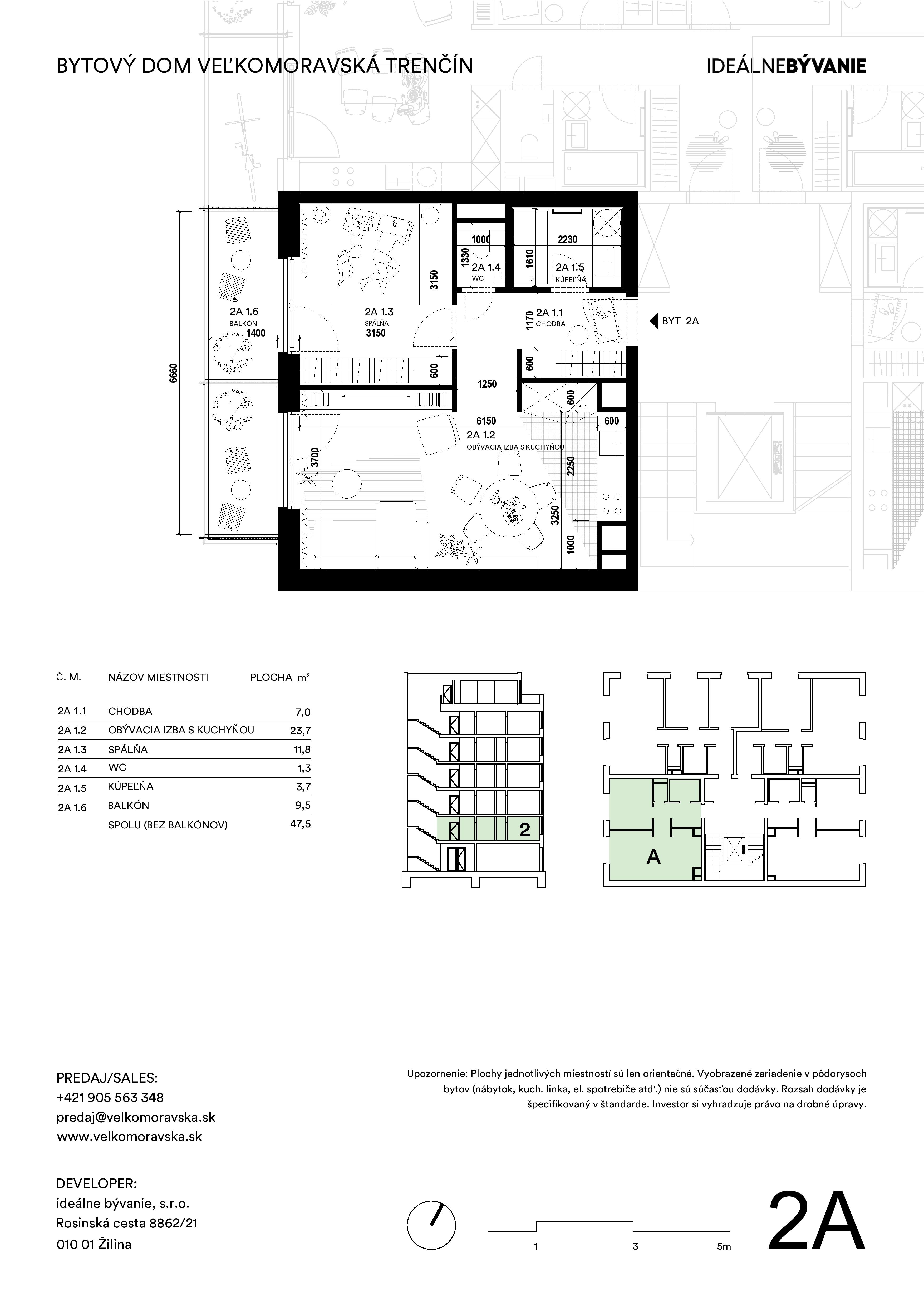
byt:
2A
Mesto / Obec:
Typ:
2-izbový byt
Poschodie:
2.NP
Rozloha:
58.5 m²
Cena:
170 235 €
Dostupnosť:
voľný
Moja Nehnuteľnosť
Profesionálna kalkulačka pre investície do nehnuteľností
Trenčín Veľkomoravská - 2A - Pôdorys
zdroj: https://idealnebyvanie.sk/byty-na-predaj/byt-2a